mediterranean west coast
foto proyecto
foto proyecto
foto proyecto
foto proyecto
foto proyecto
foto proyecto
foto proyecto
foto proyecto
foto proyecto
foto proyecto
foto proyecto
foto proyecto
foto proyecto
foto proyecto
foto proyecto
foto proyecto
foto proyecto
foto proyecto
foto proyecto
foto proyecto
foto proyecto
foto proyecto
foto proyecto
foto proyecto
foto proyecto
foto proyecto
foto proyecto
foto proyecto
foto proyecto
foto proyecto
foto proyecto
dibujo proyecto
dibujo proyecto
dibujo proyecto
dibujo proyecto
dibujo proyecto
dibujo proyecto
151 CASA NORTH
ALICANTE. SPAIN
COMMISSION. 2023
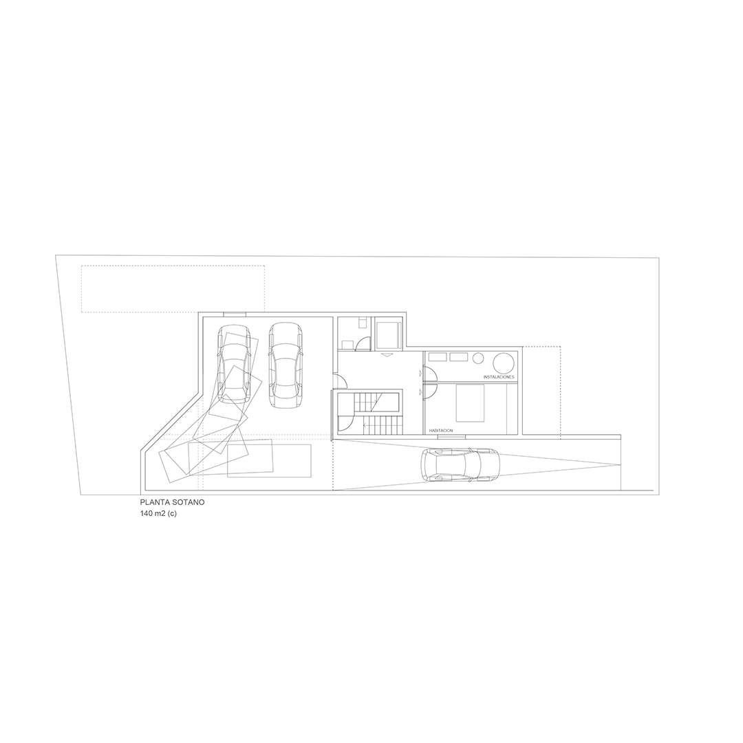
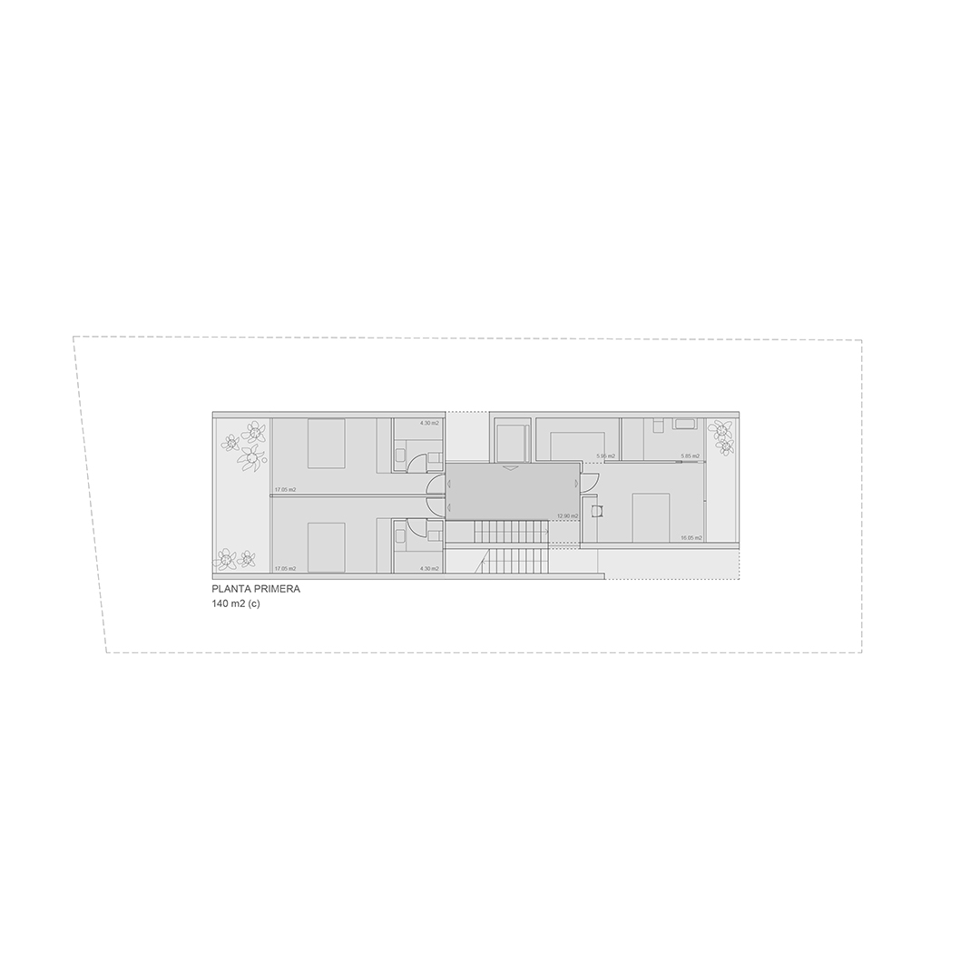
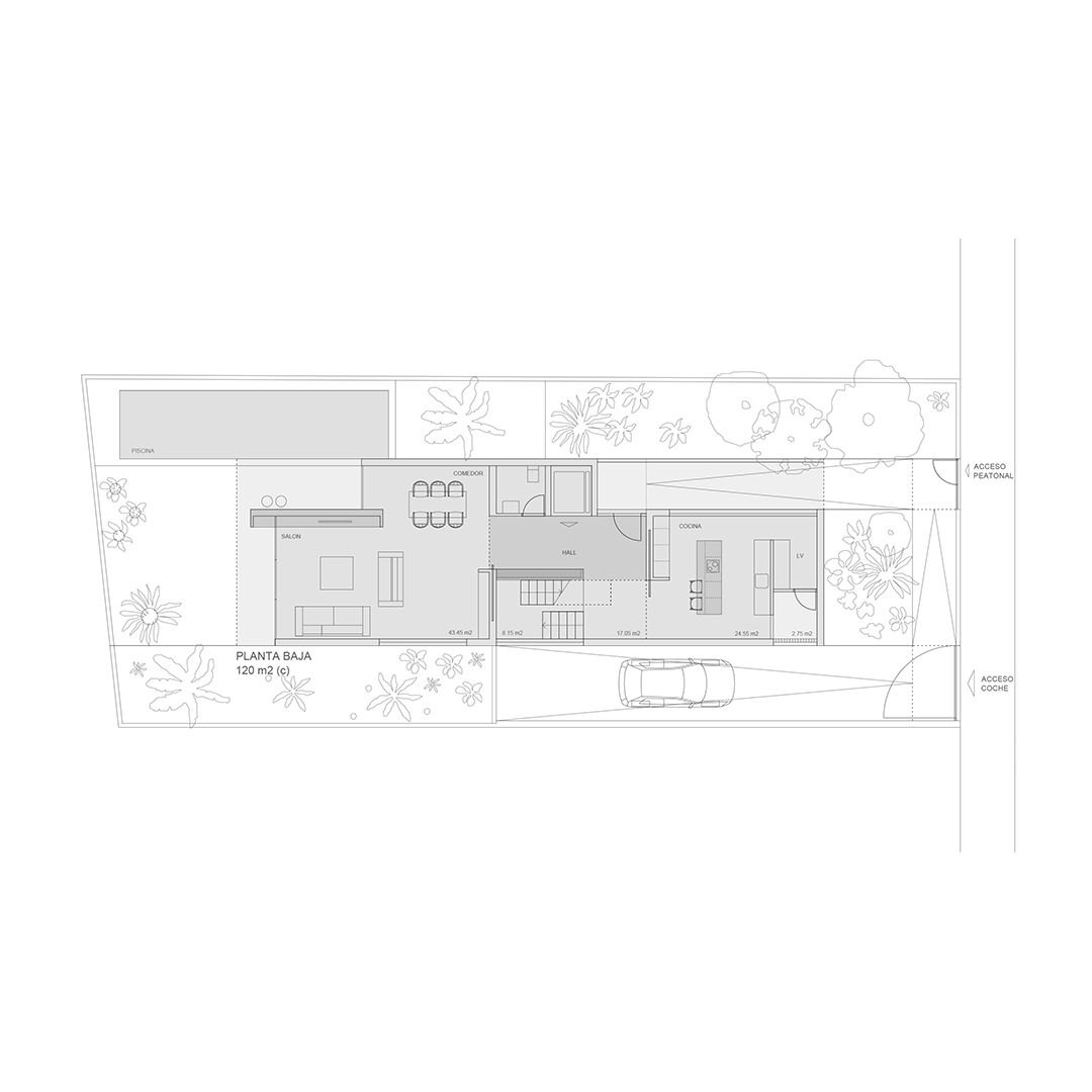
A ramp connects the access to the plot and down to the parking with the entrance to the house from the middle area of the house placing to one side the kitchen area and the other the living room. The first floor for rest and hygiene.

The access stairway to the solarium deck is exterior and allows maximum use of the interior space allowed in the solarium as well as becoming a viewpoint to the sea. A house that is built in crude, raw, without makeup or cosmetics. No excesses or ornaments. A place to enjoy the light of the Mediterranean, the water and the sea.
© All rights reserved.