mediterranean west coast
foto proyecto
foto proyecto
foto proyecto
foto proyecto
foto proyecto
foto proyecto
foto proyecto
foto proyecto
foto proyecto
foto proyecto
foto proyecto
foto proyecto
foto proyecto
foto proyecto
foto proyecto
foto proyecto
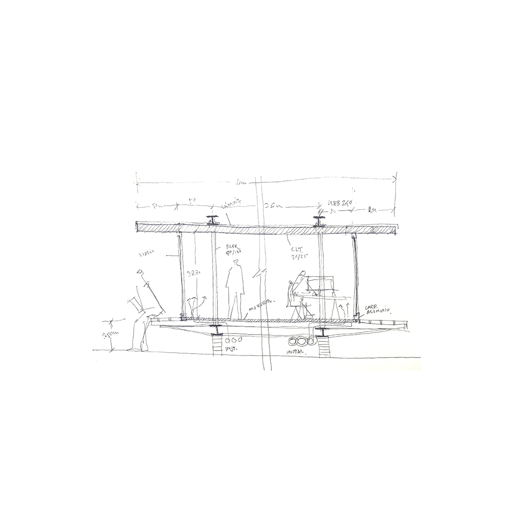
dibujo proyecto
dibujo proyecto
dibujo proyecto
dibujo proyecto
dibujo proyecto
dibujo proyecto
dibujo proyecto
dibujo proyecto
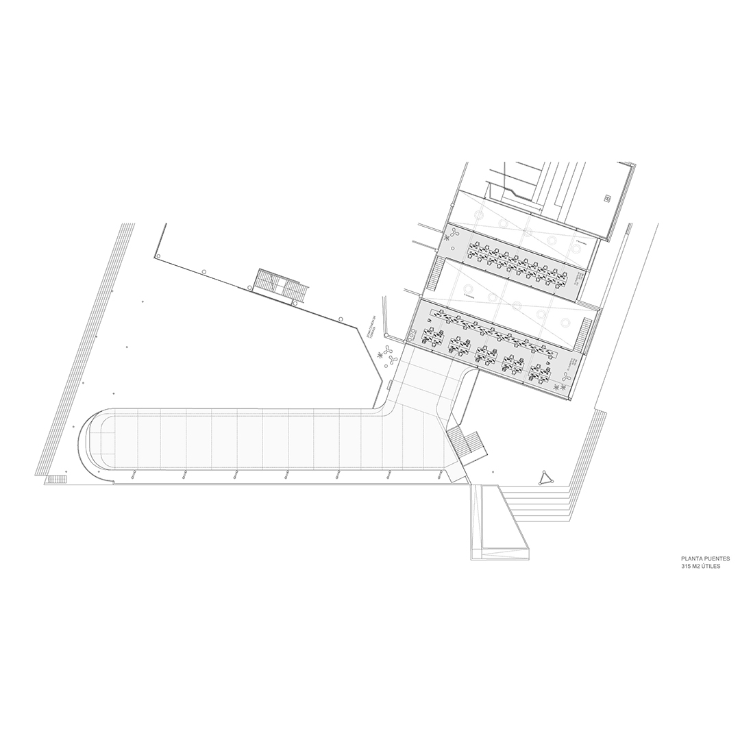
233 FACEPHI HEADQUARTERS
ALICANTE. SPAIN
COMMISSION. BUILT. 2022-2023
© All rights reserved.